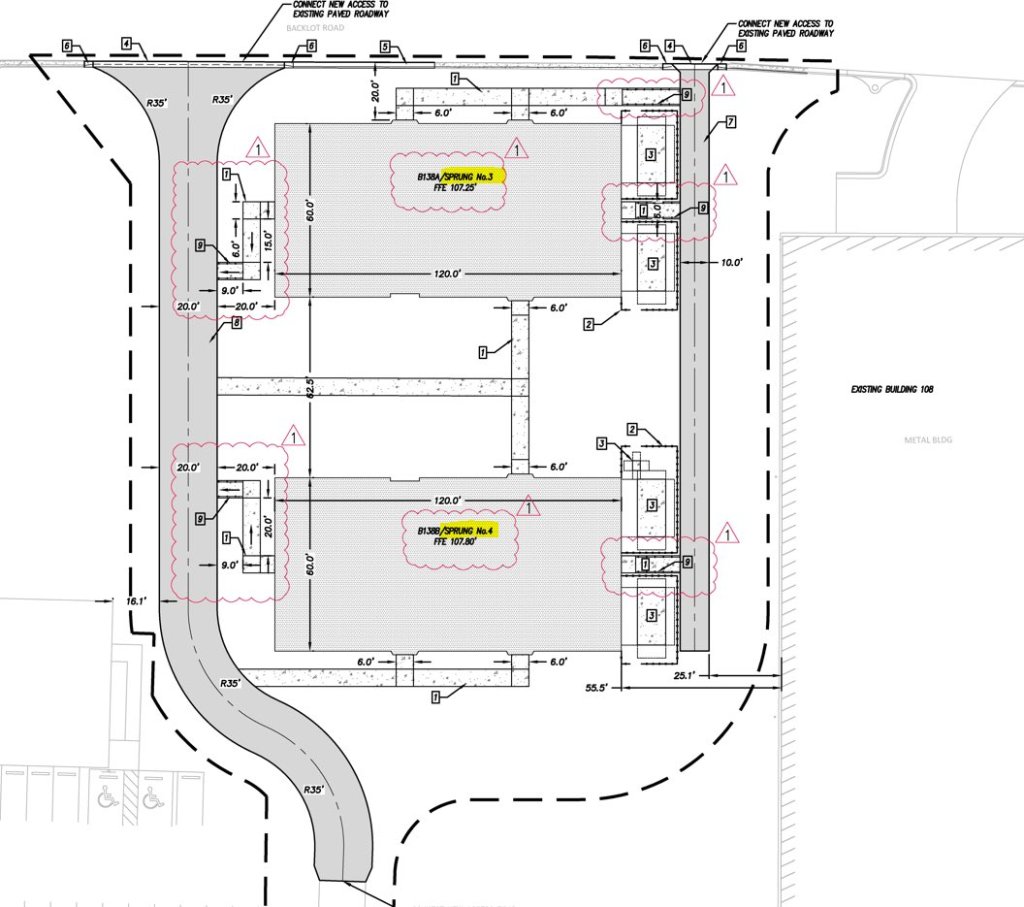
Universal Orlando has filed a permit for two new Halloween Horror Nights sprung tents on the storage lot near the current sprung tents. The map below shows the location of the project:

The permit states, “Demolish existing storage areas and install two sprung tent structures with minor site tie-ins. There is no change in total impervious coverage.”

In the (permit) plans, the sprung tents are labelled as “SPRUNG No.3” and “SPRUNG No.4” because of the two tents nearby. According to Behind the Thrills, the two new tents are “7200sqft.”

What will these new tents be used for? We’ll just have to wait and see…
Universal Orlando hasn’t revealed any details about Halloween Horror Nights 33 at Universal Studios Florida just yet. Stay tuned for further updates.
Stay tuned to Orlando Theme Park Zone for more Orlando theme park-related news and information.
JOIN OUR HALLOWEEN HORROR NIGHTS – UNIVERSAL ORLANDO FACEBOOK GROUP HERE!







![New Aerial Photos Show Construction Progress of SEAQuest: Legends of the Deep at SeaWorld Orlando [Part #6]](https://orlandothemeparkzone.com/wp-content/uploads/2026/02/31st-January-New-Aerial-Photos-Show-Construction-Progress-of-SEAQuest-Legends-of-the-Deep-at-SeaWorld-Orlando-Aerial-Photo-1.jpeg)
